欢迎您来到机电设备采购平台!
首页 > 房屋建筑 > 工程设计 >

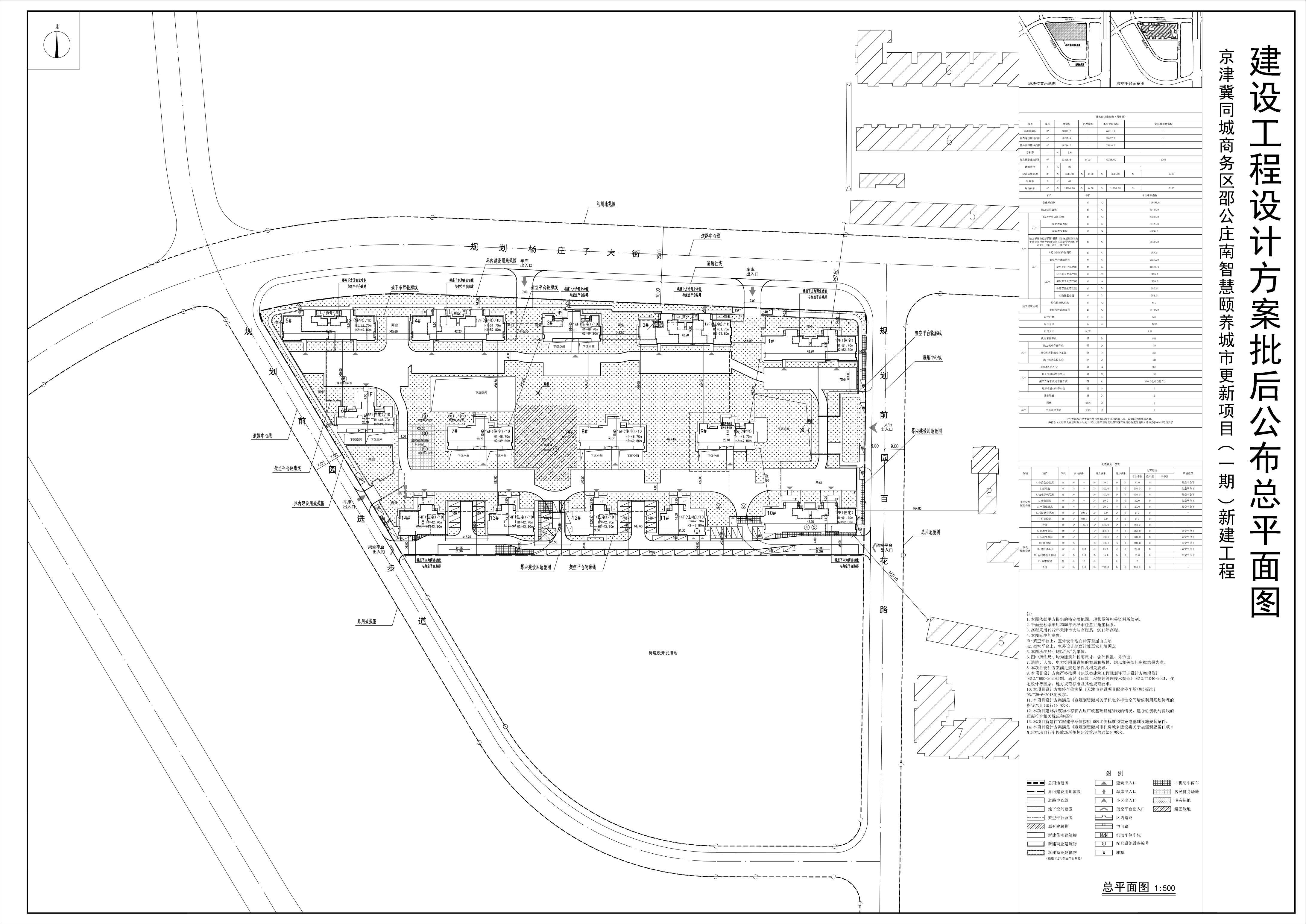
(红桥区)关于京津冀同城商务区邵公庄南智慧颐养城市更新项目(一期)新建工程建设工程设计方案总平面图的公布-审批信息

(红桥区)关于京津冀同城商务区邵公庄南智慧颐养城市更新项目(一期)新建工程建设工程设计方案总平面图的公布-审批信息

  • 收藏
  • 打印
  • 字小
  • 字大+
信息时间:
2025-09-15
招标文件下载

??依据《中华人民共和国城乡规划法》等相关规定要求,将京津冀同城商务区邵公庄南智慧颐养城市更新项目(一期)新建工程建设工程设计方案总平面图进行公布,公布期限为信息发布之日起至建设项目规划验收合格为止。


附件下载: 1 、 运六公布图.jpg
查看项目详细信息

版权免责声明

【1】凡本网注明"来源:机电设备采购平台"的所有文字、图片和音视频稿件,版权均属于机电设备采购平台,转载请必须注明机机电设备采购平台,违反者本网将追究相关法律责任。

【2】本网转载并注明自其它来源的作品,是本着为读者传递更多信息之目的,并不代表本网赞同其观点或证实其内容的真实性,不承担此类作品侵权行为的直接责任及连带责任。其他媒体、网站或个人从本网转载时,必须保留本网注明的作品来源,并自负版权等法律责任。

【3】如涉及作品内容、版权等问题,请在作品发表之日起一周内与本网联系。

分享到朋友圈
一天内免费查看信息来源站点

分享成功后点击跳转

注册使用者、商机更精准
姓名:*
手机号:*
验证码:* 发送验证码 已发送(60s)
机构名称:
职位:
供应产品:

开通黄金会员,即可查看实时商机信息(30条/天)

每天提供100000+条招投标采购信息,随时掌握最新发布的商机,实时更新

开通地区选择
全国
浙江
黄金会员权益
查看信息(30条/天)
信息订阅(5组)
来源跳转验证(30次)
附件下载(部分正文涵盖)
铂金会员权益 (包含黄金会员权益)
查看信息(100条/天)
信息订阅(10组)
来源跳转验证(100次)
项目导出(100条)
附件下载(部分正文涵盖)
钻石会员权益 (包含铂金会员权益)
查看信息(无限制)
信息订阅(无限制)
来源跳转验证(无限制)
企业推荐
项目导出(1000条)
企业信息
附件下载(部分正文涵盖)

抱歉,您当前会员等级权限不够!

此功能只对更高等级会员开放,立即提升会员等级!享受更多权益及功能

请扫码添加客服微信或拨打客服热线 0571-28951270 提升会员等级
订单创建成功,打开微信扫一扫完成付款

打开微信扫一扫完成付款

商品名称 暂无
订单编号 暂无
支付方式 微信支付
微信支付 ¥ 249
切换方式

切换到支付宝支付

关注微信
关注微信
关注App
关注App
微信客服
微信客服
返回顶部